学校首页
首 页
部门介绍
部门简介
部门职责
人员分工
教学概况
本科教学简介
本科专业设置
决策指导组织
行政管理体系
督导咨询组织
优秀教师风采
校外基地风貌
制度规程
上级法规类
教研教改类
教学规程类
学籍管理类
课务组织类
教材管理类
实验实践类
考务管理类
质量管理类
语言文字类
其他管理类
办事指南
学生办事指南
教师工作指南
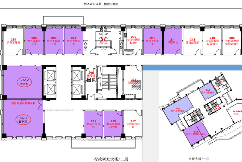
教务处位置图
质量工程
专业建设
课程建设
教材建设
教学团队
示范中心
教改课题
教学成果
毕业设计
实践基地
在线咨询
学校学年校历
学校作息时间
校区交通时刻
学业政策问答
学院咨询热线
下载专区
教研教改
学籍管理
教务管理
教材管理
实验实践
考务管理
质量管理
语言文字
办事指南
学生办事指南
教师工作指南
教务处位置图
教务处位置图
当前位置:
首页
办事指南
教务处位置图
版权所有 © 竞技宝登录入口教务处
学校地址:江苏省镇江市丹徒区长晖路666号 邮编:212100
竞技宝app最新下载